The Bolsover Street Luxury Flat
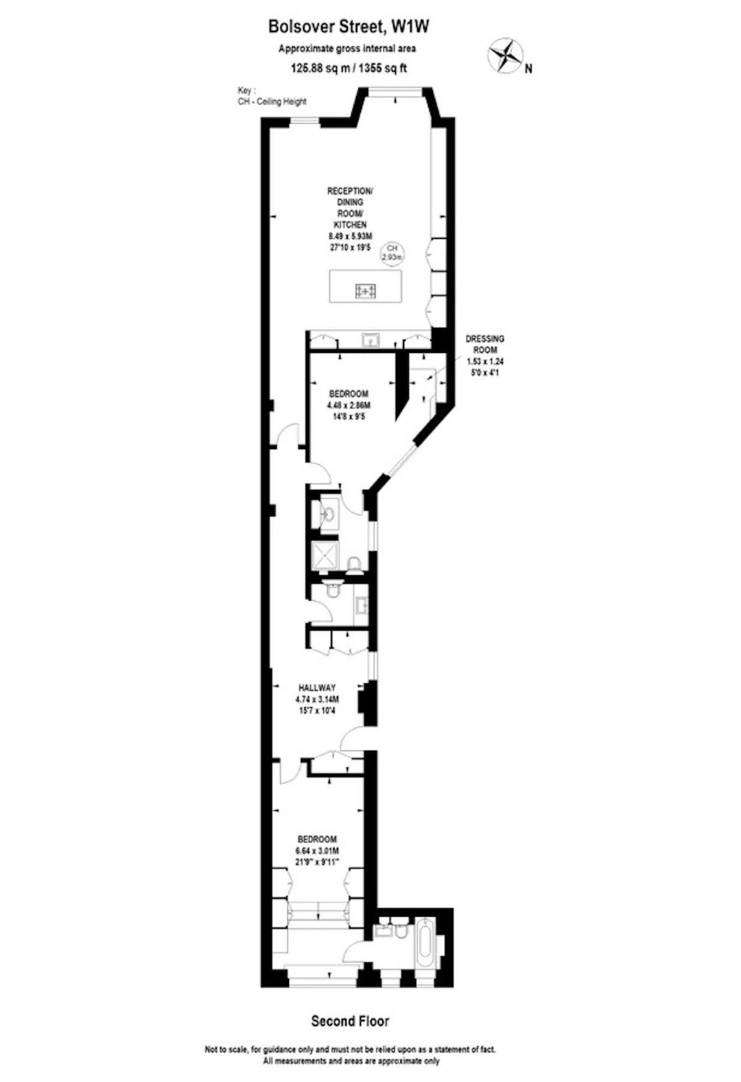
Exceptional third-floor 1360 square feet apartment in a coveted development on Bolsover Street in Fitzrovia.
At the far end of the apartment, an open-plan reception room encompasses the living room, kitchen and dining space. Here, top-of-the-line appliances are concealed in minimal cabinetry; topped with a beautiful veined marble. Built-in shelves add extra storage, while parquet flooring runs underfoot throughout; a breakfast bar has space for stools to be placed underneath.
AMENITIES
Other Features
Air conditioning
Bathtub
Body soap
Carbon monoxide detector
Cleaning Products
Coffee maker
Conditioner
Cooking Basics
Dishes and silverware
Hair Dryer
Heating
Iron
Kitchen
Refrigerator
Smoke detector
TV
Washer
Wireless Internet
DETAILS
Property ID: 40415
Rooms: 7
Bedrooms: 2
Bathrooms: 3
Check-in Hour: 16:00:00
Check-Out Hour: 10:00:00
Extra People: 70
TERMS AND CONDITIONS
Smoking Allowed
Pets Allowed
Party Allowed
Children Allowed


